+38 more
/ 43
+33
$475,000
3 bd
2 ba
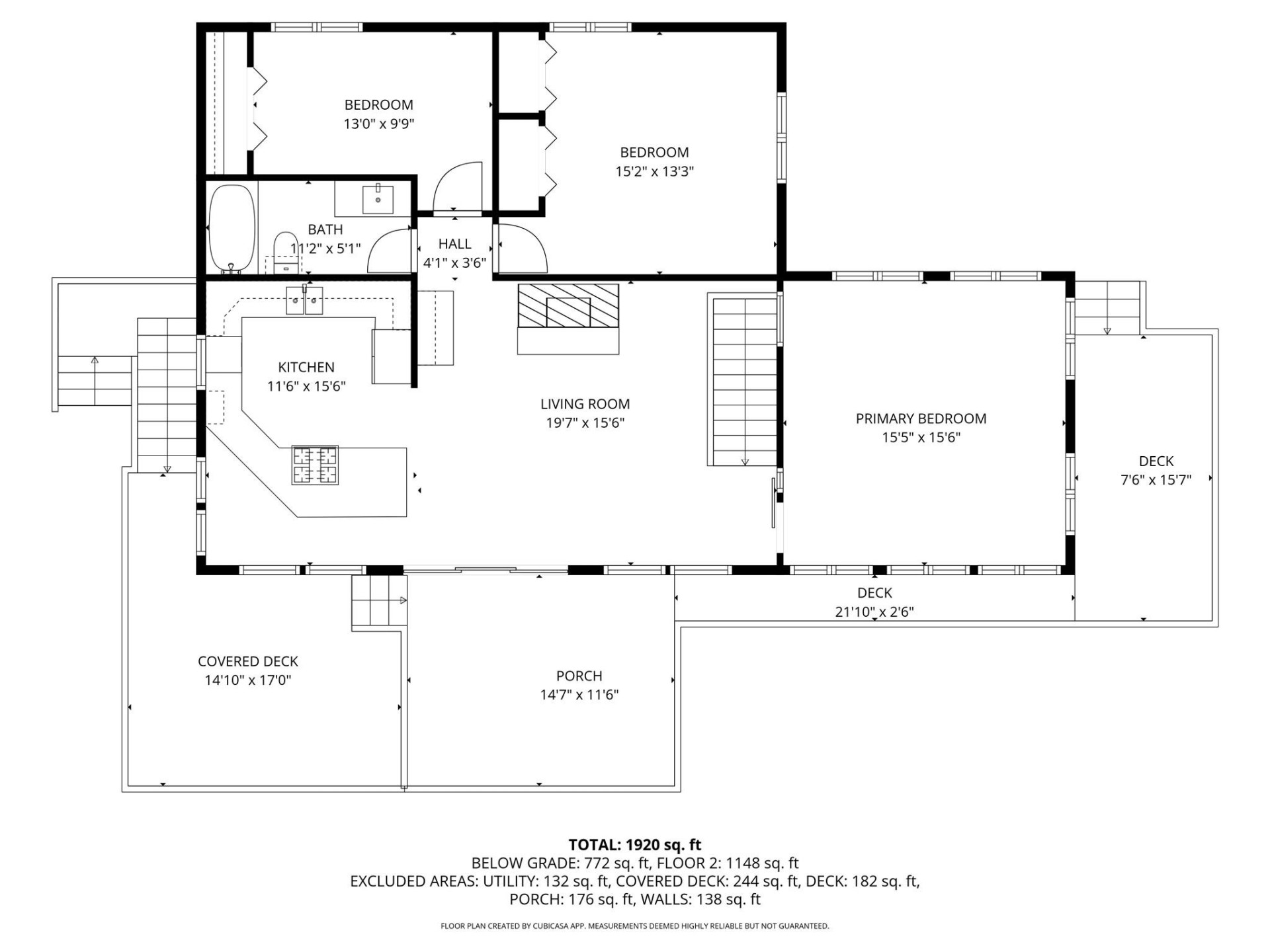
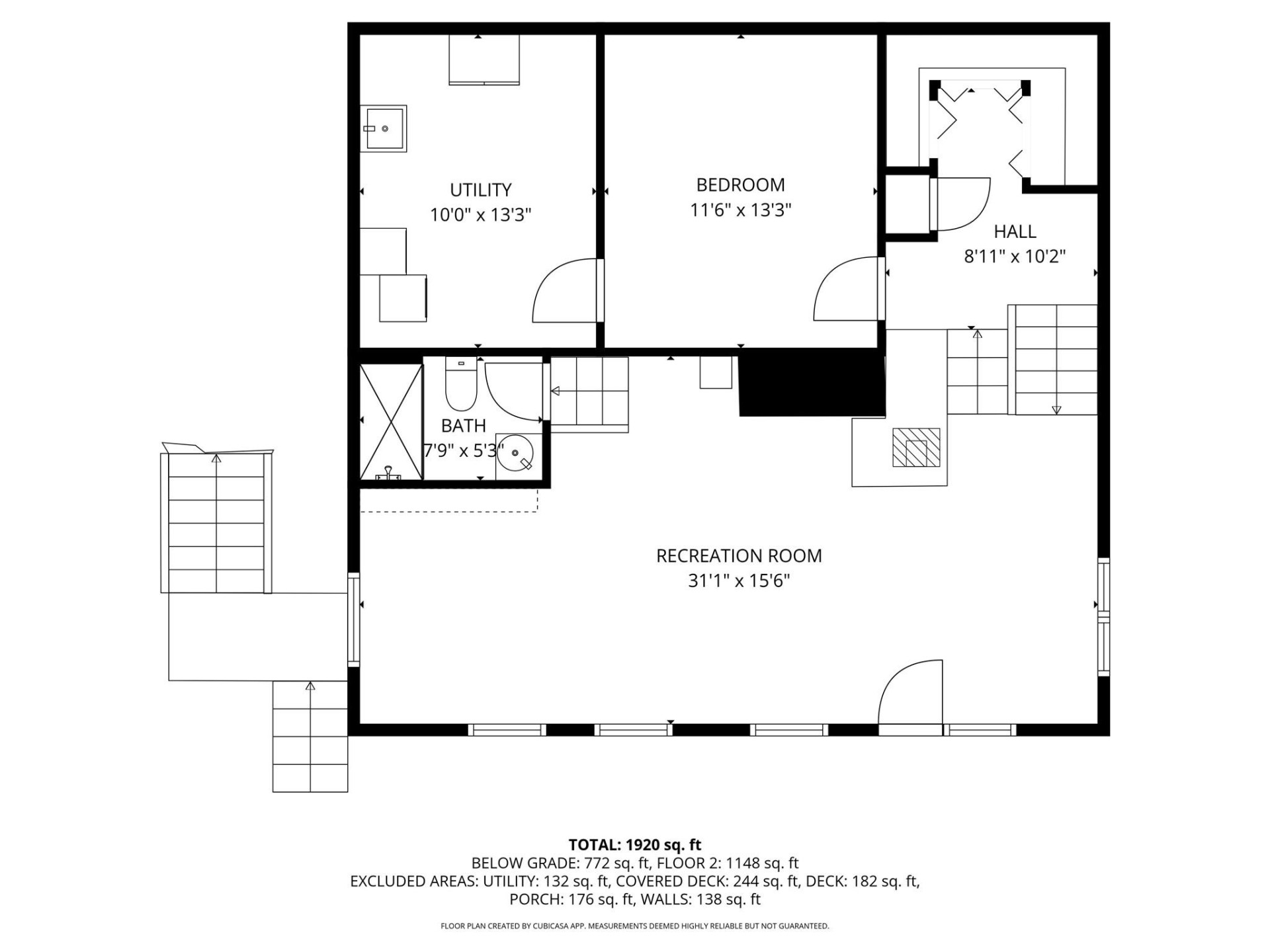
1,920 sqft
354 Big Ridge Road
Burnsville, NC 28714
Active
85 days on market
Property Type
Residential
Year Built
1979
Lot Size
—
Garage
—
About This Property
Charming Remodeled Mountain Cabin with Beautiful Views — Fully Furnished and Move-In Ready
Experience the tranquility of true mountain living in this beautifully remodeled cabin located at an elevation of over 3,200 feet. This inviting 3-bedroom, 2-bathroom retreat blends rustic charm with modern comfort, offering the perfect balance of warmth and style.
Step inside to discover a completely refreshed interior featuring new luxury vinyl plank flooring on the upper level, water-resistant laminate on the lower level, and hardwood flooring in the bonus room. Additional updates include a brand-new roof (2025), new Pella sliding glass doors on the main level, a beautifully renovated kitchen, and updated bathrooms throughout.
Relax on the covered deck and take in the peaceful mountain views while enjoying the crisp mountain air.
This cabin is being sold completely furnished — all the way down to the dishes and linens, making it truly move-in ready or ideal as a turnkey vacation rental. Every detail has been thoughtfully curated for comfort, convenience, and timeless mountain charm.
Perfectly located just 25 minutes from the quaint town of Burnsville and only an hour from Asheville, NC, this property offers both serenity and accessibility.
Whether you’re seeking a full-time residence, a weekend getaway, or an investment opportunity, this mountain cabin is ready to welcome you home.
Home inspection report available - Agents see Remarks
Experience the tranquility of true mountain living in this beautifully remodeled cabin located at an elevation of over 3,200 feet. This inviting 3-bedroom, 2-bathroom retreat blends rustic charm with modern comfort, offering the perfect balance of warmth and style.
Step inside to discover a completely refreshed interior featuring new luxury vinyl plank flooring on the upper level, water-resistant laminate on the lower level, and hardwood flooring in the bonus room. Additional updates include a brand-new roof (2025), new Pella sliding glass doors on the main level, a beautifully renovated kitchen, and updated bathrooms throughout.
Relax on the covered deck and take in the peaceful mountain views while enjoying the crisp mountain air.
This cabin is being sold completely furnished — all the way down to the dishes and linens, making it truly move-in ready or ideal as a turnkey vacation rental. Every detail has been thoughtfully curated for comfort, convenience, and timeless mountain charm.
Perfectly located just 25 minutes from the quaint town of Burnsville and only an hour from Asheville, NC, this property offers both serenity and accessibility.
Whether you’re seeking a full-time residence, a weekend getaway, or an investment opportunity, this mountain cabin is ready to welcome you home.
Home inspection report available - Agents see Remarks
Property Details
Interior
- Bedrooms
- 3
- Bathrooms
- 2
- Living Area
- 1,920 sqft
Exterior & Lot
- Year Built
- 1979
Location
- Subdivision
- Mt. Mitchell Lands
- County
- Yancey
- ZIP Code
- 28714
Financial
- Listing Terms
- Cash, Conventional, Exchange, FHA, VA Loan
- HOA Fee
- $500/mo
Utilities
- Utilities
- Wired Internet Available
- Sewer
- Septic Installed
Schools
- Elementary
- South Toe
- Middle School
- East Yancey
- High School
- Mountain Heritage
Interior Features
Breakfast Bar, Kitchen Island
Appliances
Dishwasher, Gas Cooktop, Gas Range, Microwave, Refrigerator, Tankless Water Heater, Washer/Dryer
Patio & Porch Features
Covered, Porch
Lot Features
Private, Wooded, Views
Location
Listing Information
- MLS #
- CAR4311834
- Listing Agent
- Melissa Miller
- Listing Office
- Absolute Bespoke Properties LLC
- Listed Date
- Apr 14, 2026
Contact Susan Young About This Property
Interested in 354 Big Ridge Road? Send us a message and we'll get back to you.